
Built to be Remembered
A next-generation office and retail building for downtown Kalispell—crafted to bring the outside in.

A legacy building for a growing downtown.
The Bowman is a locally rooted, mass-timber commercial building at the corner of E. Montana St and 1st Ave EN, designed to feel open and welcoming. Owned and developed by generational Flathead Valley residents, the project reflects a long-term commitment to the community it serves. Expansive glazing, natural materials, and outdoor connections create a workspace that is unmistakably premium.

Built to fit your business.
Whether you want a full floor or a multi-tenant layout, the Bowman is designed for flexibility. Efficient planning and adaptable infrastructure support teams and businesses of various sizes.
![[object Object]](https://cdn.sanity.io/images/twrz4a3o/production/cdd958dd460ca7b581955afdee4b68b03a72188e-821x402.png?w=3840&auto=format)
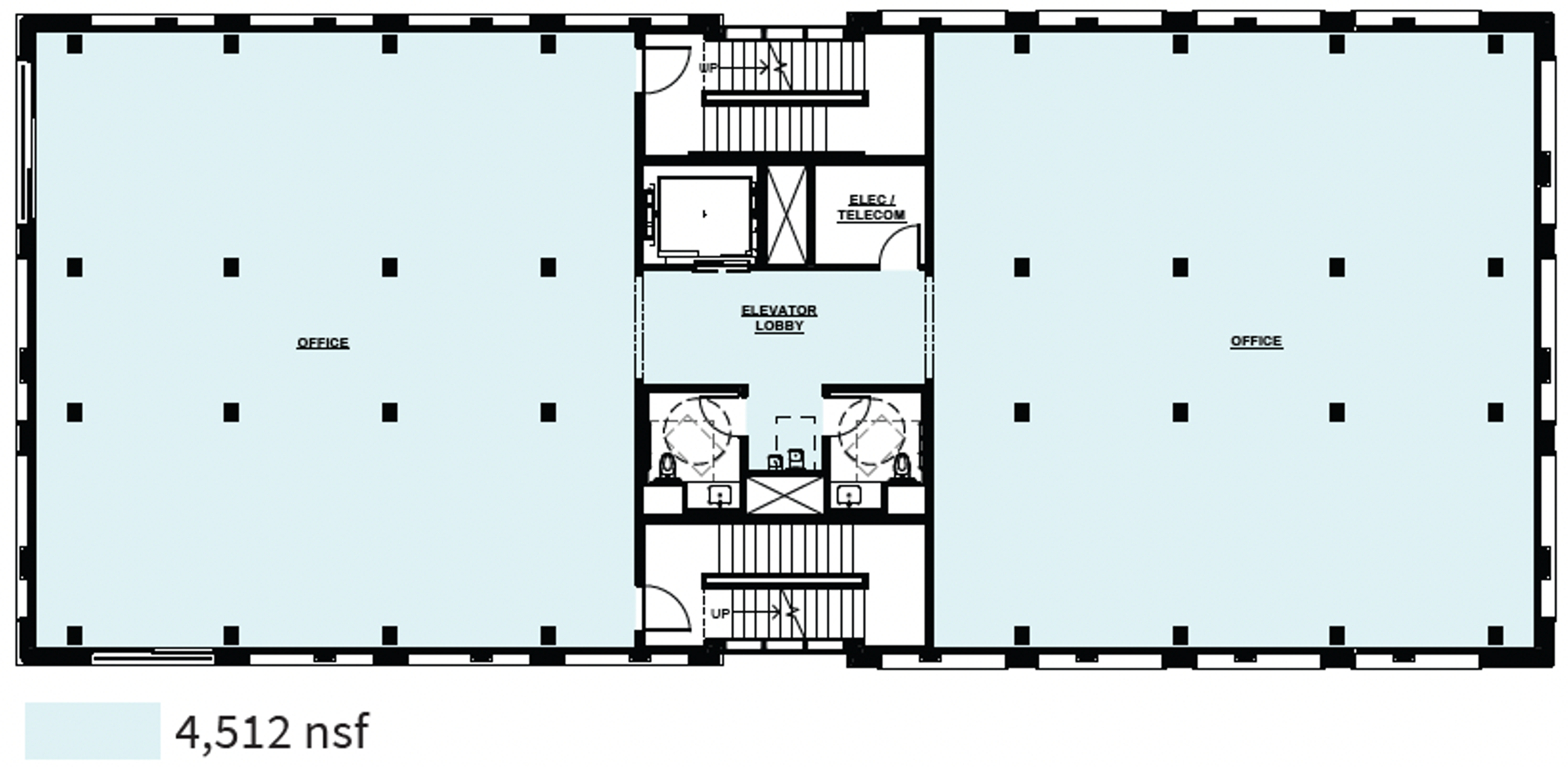
4,512 nsf
A full-floor opportunity organized around a centralized elevator and service core. This layout allows for uninterrupted perimeter workspace with daylight exposure on multiple sides, supporting flexible planning for open workstations, private offices, conference rooms, or client-facing environments.
Everything you need, right where you want it.
The Bowman pairs thoughtful building amenities with a location that quietly does the heavy lifting. It’s designed to support how modern businesses actually operate: connected, flexible, and rooted in place.
Parking
Dedicated on-site parking for tenants and visitors
Retail
Ground-floor retail activating the street and daily experience
Lobby
A welcoming light-filled lobby with fireplace
Light & Views
Corner-oriented suites that maximize daylight and views
Mass Timber Structure
Brings warmth, calm, and natural character to every floor

Walkability & Proximity
Located within a growing network of parks, trails, and redevelopment projects, the Bowman is part of downtown Kalispell’s next chapter. Its walkable setting connects tenants to the energy of the city while reinforcing a healthier, more sustainable way to work.

5-10 Minute
walking radius to downtown Kalispell essentials
Steps
from the Parkline Trail, Woodland Park, and Depot Park
Immediate access
to Kalispell Center Mall, part of a broader revitalization effort
Easy connections
to coffee, dining, green space, and daily errands
Images

Explore leasing availability at the Bowman.
Early conversations help shape final configurations and availability. If your business is considering a next-level space in downtown Kalispell, we invite you to connect by contacting David Stone.
David Stone | Broker, CCIM
SVN | PureWest Commercial Real Estate
1204 1st Avenue East Kalispell, MT 59901
Mobile 406.250.7249


![[object Object]](https://cdn.sanity.io/images/twrz4a3o/production/05a933a3fbf3b2fdc6b4cb958d68efee1970710d-2234x1196.png?w=3840&auto=format)
![[object Object]](https://cdn.sanity.io/images/twrz4a3o/production/7f4a07d27a06f94705cdf1219c5eb3972068874a-2232x1298.png?w=3840&auto=format)
![[object Object]](https://cdn.sanity.io/images/twrz4a3o/production/181320377f69541b6aa26e3f376ea0fee7f5611c-2238x1406.png?w=3840&auto=format)





